Prodotto aggiunto con successo al preventivo!
- INDUSTRIA 4.0
- CORTADORAS PROFESSIONALES
- VENTILACIÓN
- MOBILIARIO DE BAR
	- Botelleros empotrables
- Contramostradores neutros
- Contramostradores para cafetera
- Contramostradores refrigerados
- Fregaderos empotrados
- Mostradores de bar
- Mostradores de barra con paneles Start Up Line
- Mostradores de cerveza
- Mostradores de helados
- Mostradores multiusos
- Mostradores para cócteles
- Mostradores para tabacos / loterías
- Puertas y cajones de acero inoxidable
- Vitrinas aperitivo
- Vitrinas para pan
- Vitrinas para pizza
 
- MOBILIARIO DE ACERO INOXIDABLE
	- Armario de acero inoxidable AISI 304
- Armarios colgantes de acero inoxidable AISI 304
- Cajonera AISI 304
- Cuba de lavado con ruedas
- Estantería de acero inoxidable
- Estantería de acero inoxidable en pared
- Grifería
- Lavabos de acero inoxidable AISI 304
- Lavamanos
- Mesas de acero inoxidable AISI 304
- Mesas para pastelería/panadería
- Soporte para bandejas
- Tolvas
 
- MUEBLES DE ACERO INOXIDABLE 430
- MOBILIARIO KIT COMPLETO
- EQUIPO DE BAR
	- Batidoras
- Centrífuga
- Cocedora de huevos
- Congelar vasos
- Cuecepastas Snack
- Dispensador de bebidas calientes
- Dispensador de vino por copas
- Dispensadores de zumos
- Dosificadores para salsas
- Expositores/vitrinas de aperitivos
- Exprimidor
- Extractores de zumo
- Hot dog
- Lamparas de calefaccion/Calentadores fritos
- Máquinas de café
- Máquinas de panqueques
- Máquinas para Waffel
- Molinillo dosificador
- Pacojet
- Plancha para crepes
- Planchas de gas
- Planchas eléctricas
- Planchas Fry-Top para snack
- Tostadoras
- Triturador de hielo
 
- EQUIPOS DE COCINA
	- Abrelatas
- Arrocera
- Bandejas y vitrinas al baño maría
- Barbacoa piedra volcanica
- Batidoras térmicas
- Calientaplatos
- Cortador
- Cortador de verduras
- Cuchillo eléctrico
- Cutter con sistema de cocción
- Dispensador de cerveza
- Dosificadores para salsas
- Emulsionantes Pacojet /
- Estación de trabajo completa
- Freidoras de aire profesionales
- Freidoras snack
- Grupos molinillos
- Lava Mejillones
- Lavado de trufa
- Lavaverduras
- Licuadoras
- Maquina tigelle
- Pasadores
- Pelacebollas
- Pelapatatas
- Placas de snack
- Ralladores
- Salamandra
- Secador y ahumador
- Soperas
 
- EQUIPO FAST FOOD
	- Banco caliente para patatas fritas
- Baño maría para salchichas
- Baño María salsas
- Cajón calentador
- Calentador de salsas
- Carrito de servicio
- Cocedor rápido de pasta
- Dosificadores de salsa calentadas
- Embudo con calefacción con pistón
- Esparcidor de mantequilla
- Estación de corte calentada
- Estación de trabajo para crepes
- Frytop con tostadora
- Gabinete de almacenamiento y mantenimiento
- Hot dog
- Mantenedor de hamburguesas
- Raclette de queso
- Soporte para contenedores
- Tostadora
 
- EQUIPOS PARA HELADERÍAS
	- Abatidores de temperatura
- Armarios refrigerados para heladería
- Congeladores por lotes / Heladeras
- Cubetas - Accesorios varios para heladería
- Cuececremas
- Emulsionantes
- Máquinas para helados Soft
- Montadoras de nata
- Mostrador de heladería
- Mostradores de heladería para semielaborados
- Pasteurizadores
- Placas para sándwich de helado
- Prensa para helados
- Tinas fermentadoras
- Vitrinas para pastelerías y heladerías
 
- EQUIPO PARA CARNICERÍA
	- Ablandador de carne
- Afilacuchillos
- Amasadora de carne
- Armario para maduración
- Carros para carnicería
- Esterilizadores
- Expositor de pie
- Gancheras para embutidos
- Guantes - Delantal de acero inoxidable
- Máquinas embolsadoras
- Mostradores para carnicería
- Picadora de carne
- Picadora de carne refrigerada
- Picadora de carne-rallador
- Prensas para hamburguesas
- Refrigeradores de carne
- Sierra para huesos
- Tablas de cortar
- Tajos de corte
- Vitrina de carne
- Vitrinas de carne
 
- EQUIPO PARA PANADERÍA
	- Amasadoras para pan
- Armarios y mesas de fermentación controlada
- Calentadores de rosquillas
- Cámaras de fermentación controlada
- Cortadora de pan
- Cortadoras tagliafrese
- Enfriadores de agua
- Expositores autoservicio para panadería
- Expositores y Expositores murales para panadería
- Fermentadores de masa madre
- Formadoras de colines
- Hornos de pan
- Hornos de panadería / pastelería
- Modeladores para pan
- Molinillo de pan
- Mostradores alimentarios para pan
- Pesadoras - Boleadoras de masa
- Tamiz para harina
- Vitrina para panaderia
 
- EQUIPO PARA PASTELERÍA
	- Abatidores de temperatura
- Amasadoras planetarias
- Armarios de pastelería
- Batidora de huevos
- Cortadores
- Dosificadora rellenadora
- Fermentadores
- Fermentadores de masa madre
- Freidoras de pastelería
- Fuentes para chocolate
- Fundidor de chocolate
- Garrapiñadoras
- Hornos de pastelería
- Laminadoras
- Lámparas de azúcar
- Máquina para tartaletas
- Máquinas de acristalamiento
- Máquinas de galletas
- Máquinas para cápsulas
- Mesas de chocolate
- Mesas refrigeradas para pastelería
- Moldes para kurtoskalacs
- Molinillo de azúcar
- Mostradores de pastelería
- Placa refrigerada
- Rociador de chocolate
- Vertedores y templadores de chocolate
- Vitrinas para pastelerías y heladerías
 
- EQUIPO PARA PIZZERÍA
	- Accesorios de pizzería
- Amasadoras de pizza
- Armarios y mesas de fermentación controlada
- Cajones
- Contenedores para masa de pizza
- Cortador de mozzarella
- Entrega
- Expositores refrigerados para cubetas
- Fermentadores
- Hornos de pizzería
- Máquinas formadoras de pizza
- Moldeadoras para pizza
- Mostradores de pizza
- Porcionadoras - Boleadoras de masa
- Vitrinas para pizza
 
- MOSTRADORES ALIMENTARIOS Y DE PARED
- MOSTRADORES DE CAJA
- BALANZAS
- CARRITOS Y ACCESORIOS
- CONTENEDORES ISOTÉRMICOS
- CUBETAS - BANDEJAS - ACCESORIOS VARIOS
- COCCIÓN A BAJA TEMPERATURA
- COCCIÓN PROFESIONAL
- COCINAS ÉTNICAS
- CUECEPIADINAS
- DISPOSITIVOS DE HIGIENE
- ELEMENTOS ENCASTRABLES / DROP IN
- BUFFET Y MOBILIARIO REFRIGERADO
- EXPOSITORES DE FRUTAS
- EXPOSITORES DE VINO
- MÁQUINAS DE HIELO
	- Fabricador de cubitos de hielo "Dado"
- Fabricador de cubitos de hielo plano
- Máquina de cubitos de hielo Nugget
- Máquina de hielo "doméstica"
- Máquina de hielo de cubitos huecos
- Máquina de hielo de escamas planas
- Máquina de hielo de gránulos compactados
- Máquina de hielo en cubos llenos
- Máquina de hielo en escamas granular
 
- HORNOS Y FERMENTADORES
- FRIGORÍFICOS PARA FARMACIAS
- ASADORES Y KEBAB
- GRANIZADORAS Y REFRIGERADORES
- AMASADORAS Y PLANETARIAS
- LAVANDERÍA
- LAVADO
- PROCESAMIENTO DE PASTA
- REFRIGERACIÓN PROFESIONAL
	- Abatidores de temperatura
- Armario frigorífico con puerta de cristal
- Armarios frigoríficos extraíbles
- Armarios y mesas a prueba de retardadores
- Cámaras frigoríficas
- Colgantes y murales refrigerados/caliente
- Congeladores islas y refrigeradores horizontales
- Contadores traseros
- Contenedor refrigerado para cerveza
- Enfriadores de botellas
- Frigoríficos combinados
- Gabinete de nevera con puerta ciega
- Mesas refrigeradas
- Minibar
- Refrigeradores circulares
- Sistemas de mostrador/bajo mostrador
- Vitrinas refrigeradas snack
 
- LÍNEA DE FERIA
- MUEBLES DE SERVICIO
- RESTAURANTE Y BUFFET
- ELIMINACIÓN DE RESIDUOS
- SERIE MANUAL E VARIOS
- Esterilizadores
- MÁQUINAS DE VACÍO Y MÁQUINAS DE EMBALAJE
- Complementos de decoración "exteriores"
- FORNITURE ALBERGHIERE
- LÍNEA DE PESCADO
Prodotto aggiunto con successo al preventivo!
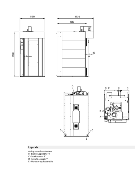
Toque de horno eléctrico - N. 15x cm 40x60/40x80/66x46/50X/60X65 - cm 115 x 139 x 232h
Horno de carro giratorio - Mod.RotorbakeE5/15T Vision - Eléctrico - Controles de pantalla táctil - Adecuado para panadería y pastelería - Capacidad bandejas no. 15x cm 40x60/40x80/66x46/50X70/60X65 - Energía kW 30 - Dimensiones cm 115 x 139 x 232h
Opciones
+ ACCESORIOS
|     Kit de filtrado y purificación de agua para vapor | Kit de filtración y purificación de agua para vapor | |
|     Cartucho de recambio para kit de filtrado y purificación de agua | Cartucho de repuesto para filtrado y kit de purificación de agua | |
|     Montaje completo en fábrica | Factory Complete Assembly | |
|     Conexión Ethernet y wi-fi sólo con comandos Vision | Conexión Ethernet y wi-fi solamente con comandos Vision | 
 Envios
                                                                                Envios
                                    ENVÍOS Y ENTREGAS
Los transportistas realizan las entregas a pie de calle y queda excluido el servicio de portería. Al realizar un pedido, el cliente debe indicar si la entrega debe efectuarse en una zona de difícil acceso. Las zonas incómodas son todos aquellos lugares de difícil acceso debido a la distancia o a la conformación del territorio, (por ejemplo, islas, ZTL, centros históricos, callejones, etc.) Para realizar entregas en estos destinos, los mensajeros exigen plazos de entrega más largos y el pago de una comisión adicional.
La mercancía se enviará a la dirección indicada durante el proceso de pedido. Si debe entregarse en otra dirección, es responsabilidad del cliente notificarlo al realizar el pedido. Si, una vez tramitado el envío, el cliente decide cambiar la dirección de destino, la mercancía entrará en depósito y se cobrarán los gastos de apertura de expediente y envío.
 Recepción de mercancías
                                                                                Recepción de mercancías
                                     info sobre componentes eléctricos
                                                                                info sobre componentes eléctricos
                                    A menudo, las máquinas profesionales se suministran sin el enchufe por diversas razones técnicas y normativas:
Normalización y compatibilidad: Las máquinas profesionales se utilizan en distintas partes del mundo, donde las normas sobre tomas de corriente y tensiones eléctricas varían. Suministrar el cable sin toma de corriente permite a los usuarios adaptar la maquinaria a las normas de su país o entorno de trabajo.
Instalación personalizada: las máquinas profesionales suelen ser instaladas por técnicos cualificados que eligen el tipo de toma o conexión que mejor se adapta a las necesidades del cliente, como conexiones directas a la red eléctrica o tomas industriales específicas.
Normativa de seguridad: en algunos contextos profesionales, la normativa exige que las máquinas se conecten directamente a la red eléctrica mediante un disyuntor diferencial o una conexión fija, en lugar de mediante una toma estándar. Esto reduce el riesgo de sobrecargas o fallos eléctricos.
Versatilidad de uso: Proporcionar el cable sin toma permite una mayor flexibilidad en la configuración, evitando que el fabricante tenga que gestionar variantes de producto con tomas específicas del mercado.
Reducción de costes y residuos: No incluir la toma reduce los costes de producción y evita residuos si el usuario final necesita otro tipo de conexión.
Esta práctica es habitual en equipos que requieren una instalación técnica o que operan en entornos profesionales con requisitos específicos.
 Tipos Dde pagos
                                                                                Tipos Dde pagos
                                    CONDICIONES DE PAGO: Podrá pagar los productos solicitados en nuestro portal utilizando los siguientes métodos de pago
_______________________________
 1) PAYPAL
1) PAYPAL
D.L.Service Div. E-Commerce brinda toda la seguridad y rapidez del pago a través de Paypal, un medio seguro para enviar dinero, ya que es posible pagar sin compartir los datos de la tarjeta.
 1) TARJETA DE DEUDA DE CREDITO O PAGO EN 2.3.4 CUOTAS
1) TARJETA DE DEUDA DE CREDITO O PAGO EN 2.3.4 CUOTAS 
ALMA está disponible para compras de valor adecuado entre € 50.00 y € 2,000.00. Se puede pagar en 2.3.4 cuotas cómodas. El pago permitido también en algunos países europeos.
 2) TARJETA DE CRÉDITO
2) TARJETA DE CRÉDITO
Al elegir el pago con tarjeta de crédito, será dirigido automáticamente al sitio web del banco que se encargará de la transacción. Las tarjetas de crédito aceptadas son todas aquellas que cuenten con el circuito Visa, MasterCard, American Express, CartaSi, Maestro. La seguridad de la transacción está garantizada por un sistema de cifrado de datos que utiliza certificados SSL (Secure Socket Laer).
 3) 30% DE PAGO ANTICIPADO CON 70% DE SALDO CUANDO LA MERCANCÍA ESTÁ LISTA
3) 30% DE PAGO ANTICIPADO CON 70% DE SALDO CUANDO LA MERCANCÍA ESTÁ LISTA
Al elegir esta forma de pago deberá pagar el 30% del total del pedido y el 70% restante cuando la mercancía esté lista para su envío. En este caso el cliente será notificado dos días antes del envío para poder emitir la transferencia de saldo.
 4) TRANSFERENCIA BANCARIA ANTICIPADA
4) TRANSFERENCIA BANCARIA ANTICIPADA
Si prefiere pagar por transferencia bancaria, debe enviar la copia contable por correo electrónico: info@ristorazione-refrigerazione.it o por WhatApp al n. 389 7940545. El objeto de la transferencia debe incluir el número de pedido
 Video
                                                                                Video
                                     Tiempos de producción
                                                                                Tiempos de producción
                                    Los tiempos de producción pueden variar de 3 a 15 días. Existe el Stiker "Ready Delivery" en miles de productos. Para todos los demás productos, puede solicitar la disponibilidad contactando a nuestra atención de Custumer en los números 0824 1816643 - 0824 49346, enviando un mensaje de WhatsApp a n. 389 7940545 o enviando un correo electrónico a info@ristorazione-refrigerazione.it
 Cómo contactarnos
                                                                                Cómo contactarnos
                                    
| INFORMACIÓN SOBRE EL PRODUCTO | |
|---|---|
| Horno rotatorio | RotorbakeE5/15T Vision | 
| Dimensiones producto | cm115 x 139 x 232h | 
| Peso | Kg 615 | 
| Origen | Italia | 
| Garantía | 12 meses | 
| Estándar | CE | 
| DATOS TÉCNICOS | |
|---|---|
| Capacidad ollas | n.15x cm 40x60/40x80/66x46/50X70/60X65 | 
| Distancia entre bandejas | mm 93 | 
| Temperatura | Máx 270°C | 
| Consumo | kW 30 | 
| Alimentación | V400-3Ph+N+PE/50-60Hz | 
| INFORMACIÓN | |
|---|---|
| Horno rotativo para pan y bollería para masas frescas, congeladas o precocidas, compacto y versátil gracias al intercambiador de calor original y altamente fiable en "U" garantizado por 10 años que reduce las dimensiones totales y el consumo optimizando la combustión, de alta tecnología con gestión del clima en la cámara, ciclos de cocción programables hasta 10 fases y regulación de la velocidad de ventilación. | 
| CARACTERÍSTICAS GENERALES | |
|---|---|
| Doble acristalamiento de bajas emisiones | |
| Sistema multiventilador BakeAIR | |
| Conexión USB | |
| Aislamiento térmico de alto rendimiento | |
| Cinco velocidades de ventilación y cocción semiestática | |
| Cinco modos de cocción | |
| Apertura automática de la chimenea BakeDRY | |
| Bloqueo de programas con contraseña | |
| Climatización automática de la cámara | |
| Control automático del grado de cocción y de la carga | |
| Control del porcentaje de vapor BakeSTEAM | |
| Vaporizador doble RotorBake | |
| Función multitemporizador para cocciones múltiples y mixtasInyección de vapor programable y controlada por tiempoInyección de vapor manual | |
| Almacenamiento, visualización y exportación de datos de cocción (haccp) | |
| Modos de usuario con programas personalizados | |
| Modo de uso manual | |
| Modo de uso con programas preestablecidos | |
| Precalentamiento automático | |
| Programa de enfriamiento | |
| Programación de encendido diferido | |
| Programación de encendido diferido | |
| Enfriamiento automático de la cámara | |
| Recetario precargado y en línea | |
| Detección automática e informe de errores | |
| Pantalla táctil capacitiva de 7" con iconos | 
- *TIPO
- *Con vapore diretto*
- *ALIMENTACIÓN
- * Eléctrico
- *PANEL DE CONTROL
- *Touch screen*
- * CAPACIDAD BANDEJAS
- *15 Teglie / Griglie*
16 otros productos en la misma categoría:
Horno eléctrico - vapor - N. 4 x cm 60 x 40 - cm 78.4 x 75.4 x 63.4 h
Horno de gas - N° 4 x GN2/3 - cm 62 x 64.5 x 61.5 h
Horno eléctrico - N.10 x GN1/1 - cm 90.5 x 84.5 x 111h
Horno eléctrico - N. 5 x GN 1/1 - cm 73 x 84.9 x 70 h
Horno eléctrico - N. 4 x cm 45 x 33 - cm 58 x 57 x 51 h
Toque el horno de gas - N.4 x cm 40 x 60/46x66 - cm 85 x 93 x 78 h
Horno eléctrico - N°6 x cm 60 x 40 - GN 1/1 - cm 94 x 89 x 87.5 h
Horno de gas - N. 6 x cm 60 x 40 - cm 85 x 103.5 x 85 h
Horno eléctrico - N. 16 x cm 60 x 40 - cm 93 x 103.5 x 190 h
Horno eléctrico - N. 4 x cm 60 x 40 - cm 72.4 x 73 x 59.7 h
Horno eléctrico - N.6 x cm 60 x 40 - cm 85 x 104.1 x 85 h
Horno de gas - N. 10 x cm 60 x 40 - cm 85 x 103.5 x 123 h
Horno eléctrico - N. 4 x GN 2/3 - Cm 55.7 x 64 x 56.3 h
Horno eléctrico - N. 3 x GN 1/2 - cm 50.3 x 47.5 x 38 h
Horno de gas - N. 6 x cm 60 x 40 - cm 85 x 104.1 x 95.1 h
Inicio
- CORTADORAS PROFESSIONALES
- MOBILIARIO DE BAR- Contramostradores refrigerados
- Contramostradores para cafetera
- Contramostradores neutros
- Mostradores multiusos
- Mostradores para cócteles
- Mostradores de bar
- Mostradores de cerveza
- Mostradores para tabacos / loterías
- Botelleros empotrables
- Puertas y cajones de acero inoxidable
- Vitrinas aperitivo
- Vitrinas para pan
- Vitrinas para pizza
- Mostradores de barra con paneles Start Up Line
- Mostradores de helados
- Fregaderos empotrados
 
- MOBILIARIO DE ACERO INOXIDABLE- Tolvas
- Armarios colgantes de acero inoxidable AISI 304
- Lavabos de acero inoxidable AISI 304
- Estantería de acero inoxidable en pared
- Armario de acero inoxidable AISI 304
- Mesas de acero inoxidable AISI 304
- Soporte para bandejas
- Cajonera AISI 304
- Estantería de acero inoxidable
- Mesas para pastelería/panadería
- Lavamanos
- Grifería
- Cuba de lavado con ruedas
 
- MUEBLES DE ACERO INOXIDABLE 430
- BAR-
- MOBILIARIO KIT COMPLETO
- VENTILACIÓN
- EQUIPO PARA HELADO
- EQUIPO DE BAR- Dosificadores para salsas
- Pacojet
- Máquinas de panqueques
- Tostadoras
- Hot dog
- Plancha para crepes
- Expositores/vitrinas de aperitivos
- Planchas eléctricas
- Planchas Fry-Top para snack
- Batidoras
- Triturador de hielo
- Centrífuga
- Exprimidor
- Lamparas de calefaccion/Calentadores fritos
- Dispensador de bebidas calientes
- Molinillo dosificador
- Planchas de gas
- Cocedora de huevos
- Cuecepastas Snack
- Extractores de zumo
- Máquinas de café
- Máquinas para Waffel
- Dispensadores de zumos
- Congelar vasos
- Dispensador de vino por copas
 
- EQUIPOS DE COCINA- Lavado de trufa
- Dispensador de cerveza
- Pasadores
- Licuadoras
- Grupos molinillos
- Freidoras snack
- Lava Mejillones
- Bandejas y vitrinas al baño maría
- Pelacebollas
- Salamandra
- Calientaplatos
- Arrocera
- Estación de trabajo completa
- Emulsionantes Pacojet /
- Lavaverduras
- Barbacoa piedra volcanica
- Batidoras térmicas
- Secador y ahumador
- Soperas
- Placas de snack
- Cutter con sistema de cocción
- Maquina tigelle
- Dosificadores para salsas
- Abrelatas
- Cuchillo eléctrico
- Freidoras de aire profesionales
- Pelapatatas
- Cortador
- Ralladores
- Cortador de verduras
 
- EQUIPOS PARA HELADERÍAS- Abatidores de temperatura
- Mostrador de heladería
- Cuececremas
- Congeladores por lotes / Heladeras
- Máquinas para helados Soft
- Montadoras de nata
- Pasteurizadores
- Prensa para helados
- Vitrinas para pastelerías y heladerías
- Mostradores de heladería para semielaborados
- Tinas fermentadoras
- Armarios refrigerados para heladería
- Cubetas - Accesorios varios para heladería
- Placas para sándwich de helado
- Emulsionantes
 
- EQUIPO PARA CARNICERÍA- Esterilizadores
- Vitrinas de carne
- Picadora de carne
- Sierra para huesos
- Tajos de corte
- Ablandador de carne
- Amasadora de carne
- Picadora de carne-rallador
- Picadora de carne refrigerada
- Armario para maduración
- Mostradores para carnicería
- Afilacuchillos
- Prensas para hamburguesas
- Tablas de cortar
- Guantes - Delantal de acero inoxidable
- Carros para carnicería
- Expositor de pie
- Gancheras para embutidos
- Vitrina de carne
- Máquinas embolsadoras
- Refrigeradores de carne
 
- EQUIPO PARA PANADERÍA- Vitrina para panaderia
- Fermentadores de masa madre
- Molinillo de pan
- Armarios y mesas de fermentación controlada
- Modeladores para pan
- Formadoras de colines
- Calentadores de rosquillas
- Tamiz para harina
- Mostradores alimentarios para pan
- Cortadoras tagliafrese
- Pesadoras - Boleadoras de masa
- Hornos de pan
- Hornos de panadería / pastelería
- Amasadoras para pan
- Expositores y Expositores murales para panadería
- Expositores autoservicio para panadería
- Cámaras de fermentación controlada
- Enfriadores de agua
- Cortadora de pan
 
- EQUIPO PARA PASTELERÍA- Vitrinas para pastelerías y heladerías
- Mesas refrigeradas para pastelería
- Máquinas para cápsulas
- Fermentadores
- Abatidores de temperatura
- Garrapiñadoras
- Laminadoras
- Freidoras de pastelería
- Armarios de pastelería
- Vertedores y templadores de chocolate
- Fundidor de chocolate
- Rociador de chocolate
- Placa refrigerada
- Máquina para tartaletas
- Dosificadora rellenadora
- Fuentes para chocolate
- Moldes para kurtoskalacs
- Hornos de pastelería
- Amasadoras planetarias
- Batidora de huevos
- Molinillo de azúcar
- Mostradores de pastelería
- Cortadores
- Fermentadores de masa madre
- Máquinas de acristalamiento
- Lámparas de azúcar
- Máquinas de galletas
- Mesas de chocolate
 
- EQUIPO PARA PIZZERÍA- Fermentadores
- Hornos de pizzería
- Armarios y mesas de fermentación controlada
- Vitrinas para pizza
- Expositores refrigerados para cubetas
- Cortador de mozzarella
- Mostradores de pizza
- Moldeadoras para pizza
- Porcionadoras - Boleadoras de masa
- Máquinas formadoras de pizza
- Entrega
- Contenedores para masa de pizza
- Amasadoras de pizza
- Cajones
- Accesorios de pizzería
 
- MOSTRADORES ALIMENTARIOS Y DE PARED
- MOSTRADORES DE CAJA
- BALANZAS
- CARRITOS Y ACCESORIOS
- NEUTRO|CALIENTE|CAJONES REFRIGERADOS
- CONTENEDORES ISOTÉRMICOS
- CUBETAS - BANDEJAS - ACCESORIOS VARIOS
- COCCIÓN A BAJA TEMPERATURA
- COCCIÓN PROFESIONAL
- COCINAS ÉTNICAS
- CUECEPIADINAS
- DISPOSITIVOS DE HIGIENE
- ELEMENTOS ENCASTRABLES / DROP IN
- BUFFET Y MOBILIARIO REFRIGERADO
- EXPOSITORES DE FRUTAS
- EXPOSITORES DE VINO
- MÁQUINAS DE HIELO- Fabricador de cubitos de hielo "Dado"
- Máquina de hielo "doméstica"
- Máquina de hielo de cubitos huecos
- Máquina de hielo en cubos llenos
- Fabricador de cubitos de hielo plano
- Máquina de hielo en escamas granular
- Máquina de hielo de escamas planas
- Máquina de cubitos de hielo Nugget
- Máquina de hielo de gránulos compactados
 
- HORNOS Y FERMENTADORES
- FRIGORÍFICOS PARA FARMACIAS
- ASADORES Y KEBAB
- GRANIZADORAS Y REFRIGERADORES
- AMASADORAS Y PLANETARIAS
- LAVANDERÍA
- LAVADO
- PROCESAMIENTO DE PASTA
- REFRIGERACIÓN PROFESIONAL- Armario frigorífico con puerta de cristal
- Congeladores islas y refrigeradores horizontales
- Mesas refrigeradas
- Vitrinas refrigeradas snack
- Minibar
- Gabinete de nevera con puerta ciega
- Frigoríficos combinados
- Colgantes y murales refrigerados/caliente
- Cámaras frigoríficas
- Sistemas de mostrador/bajo mostrador
- Contenedor refrigerado para cerveza
- Abatidores de temperatura
- Enfriadores de botellas
- Armarios y mesas a prueba de retardadores
- Contadores traseros
- Refrigeradores circulares
- Armarios frigoríficos extraíbles
 
- LÍNEA DE PESCADO
- LÍNEA DE FERIA
- MUEBLES DE SERVICIO
- INDUSTRIA 4.0
- RESTAURANTE Y BUFFET
- ELIMINACIÓN DE RESIDUOS
- SERIE MANUAL E VARIOS
- Esterilizadores
- MÁQUINAS DE VACÍO Y MÁQUINAS DE EMBALAJE
- Complementos de decoración "exteriores"
- EQUIPO FAST FOOD- Hot dog
- Baño María salsas
- Baño maría para salchichas
- Mantenedor de hamburguesas
- Carrito de servicio
- Estación de corte calentada
- Calentador de salsas
- Embudo con calefacción con pistón
- Frytop con tostadora
- Dosificadores de salsa calentadas
- Estación de trabajo para crepes
- Banco caliente para patatas fritas
- Raclette de queso
- Cajón calentador
- Tostadora
- Esparcidor de mantequilla
- Cocedor rápido de pasta
- Gabinete de almacenamiento y mantenimiento
- Soporte para contenedores
 
 
   Español
 Español  Italiano
 Italiano English
 English 
                 
                 
                
 
                         
                         
                         
                                             
                                                                                                                                                                             
                                                                                
         
                                                                                                                                                                
        
 
                                                                                                                                                                
         
                                                                                                                                                                             
                                                                                
         
                                                                                                                                                                
         
                                                                                                                                                                
         
                                                                                                                                                                             
                                                                                
         
                                                                                                                                                                
         
                                                                                                                                                                
         
                                                                                                                                                                
         
                                                                                                                                                                             
                                                                                
         
                                                                                                                                                                
         
                                                                                                                                                                
         
                                                                                                                                                                             
                                                                                
         
                                                                                                                                                                
        